Leyton real estate
Boliger

Villa · Nybygg

Torre Pacheco · Santa Rosalia Lake And Life Resort
1.613.000€
Informera prisfall
Kontakt
Request info

Villa · Nybygg

Torre Pacheco · Santa Rosalia Lake And Life Resort

Detaljer

Soverom: 3
Baderom: 3
bruttoareal: 321m2
Tomt: 500m2
Basseng: Ja
Near Commercial Center
Under-Build / Basement
Number of Parking Spaces: 2
Location: Rural, Urbanisation
Parking - Space
Beach: 3600 Meters
Useable Build Space: 159 Msq.
Terrace: 146 Msq.
Storage / Trastero
Toilet: 1
Garden
Solarium: Yes
Laundry room
Private Pool
Gated
Near Schools
Double Bedrooms: 3
Energi~~POS=TRUNC
Energi~~POS=TRUNCB

Eiendomsbeskrivelse

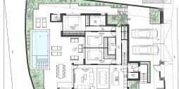
Luksusvilla med direkte utsikt mot innsjøen i Santa Rosalia Lake and Life Resort, Murcia Eksklusiv nybygget villa i et unikt ferieanlegg Oppdag denne enestående nybygget villaen med direkte utsikt mot innsjøen i det prestisjetunge Santa Rosalia Lake and Life Resort i regionen Murcia. Eiendommen ligger på en romslig tomt på 500 m² og byr på en sjelden mulighet til å nyte moderne arkitektur, privatliv og en livsstil som i et ferieanlegg i et av de mest innovative boligprosjektene i Sør-Spania. Villaen er fordelt på første etasje, kjeller og solterrasse på taket, og kombinerer moderne design med romslige oppholdsrom og høykvalitets finish. Den privilegerte beliggenheten gir direkte utsikt over den fantastiske kunstige innsjøen, noe som skaper et fredelig og eksklusivt miljø. Romslig design med stue med dobbel takhøyde Første etasje har en lys, åpen stue og spisestue med spektakulær dobbel takhøyde, noe som forsterker følelsen av romslighet og naturlig lys. Det moderne kjøkkenet er fullt utstyrt med BOSCH-apparater og går sømløst over i uteterrassen og det private svømmebassenget. Eiendommen har tre soverom og tre bad, samt et gjestetoalett. Planløsningen er designet for å gi både komfort og funksjonalitet, noe som gjør den ideell for familieliv eller for å ta imot gjester. Kjeller med naturlig lys og tilpasningsmuligheter Et fremtredende trekk ved denne villaen er den romslige kjelleren med naturlig lys fra engelske terrasser. Dette nivået gir stor fleksibilitet og kan tilpasses til ekstra oppholdsrom, for eksempel et treningsrom, hjemmekino, gjesteinnkvartering eller kontor. Kjelleren har forhåndsinstallasjon for klimaanlegg og tilkoblinger for vann og strøm, slik at eierne kan skreddersy rommet etter egne behov. Privat solarium og uteområder Solariet på taket er et ideelt sted for avslapning og utendørsopphold, med forhåndsinstallasjon for boblebad og åpen utsikt over innsjøen og det omkringliggende feriestedet. Villaen har også et privat svømmebasseng og anlagte uteområder designet for å nyte middelhavsklimaet året rundt. Høykvalitetsfunksjoner og energieffektivitet Eiendommen er bygget med førsteklasses materialer og har en forsterket sikkerhetsinngangsdør, sentralisert klimaanlegg, seks solcellepaneler og høykvalitets finish overalt. Resortliv med eksepsjonelle fasiliteter Santa Rosalia Lake and Life Resort er et inngjerdet boligområde med 24-timers sikkerhet, designet rundt et 126 000 m² stort grøntområde. I hjertet ligger en spektakulær, krystallklar innsjø på nesten 17 000 m², omgitt av hvite sandstrender, palmer og rekreasjonsområder. Beboerne kan nyte tur- og sykkelstier, idrettsanlegg, padle- og tennisbaner, minigolf, hundeparker, klubbhus og strandbarer, noe som skaper en unik livsstilsopplevelse. Førsteklasses beliggenhet nær strender og golfbaner Resortet har en ideell beliggenhet mindre enn 4 km fra strendene ved Mar Menor og byen Los Alcázares. Cartagena ligger bare 15 km unna, og Murcia internasjonale lufthavn ligger 22 km unna. Flere golfbaner ligger også innen kort kjøretur. Ideell investering og mulighet for en luksuriøs livsstil Denne villaen ved sjøen tilbyr en unik mulighet til å nyte et luksuriøst liv i et resortmiljø med eksepsjonelle fasiliteter og stort investeringspotensial. Kontakt oss i dag for mer informasjon eller for å avtale en privat visning av denne eksklusive villaen i Santa Rosalia Lake and Life Resort.

Plassering

Økonomi

Denne informasjonen gitt her er underlagt feil og inngår ikke i noen kontrakt. Tilbudet kan endres eller trekkes tilbake uten varsel. Prisene inkluderer ikke andre kostnader

Beregn boliglån

Valutaveksling

  • Pounds: 1.400.132 GBP
  • Russiske rubelen: 1.400.132 RUB
  • Sveitsiske franc: 1.483.799 CHF
  • Kinesiske yuan: 12.914.807 CNY
  • Dollar: 1.889.146 USD
  • Svenske kroner: 17.452.660 SEK
  • Norske kroner: 17.666.383 NOK

Be om informasjon

Responsable del tratamiento: , Finalidad del tratamiento: Gestión y control de los servicios ofrecidos a través de la página Web de Servicios inmobiliarios, Envío de información a traves de newsletter y otros, Legitimación: Por consentimiento, Destinatarios: No se cederan los datos, salvo para elaborar contabilidad, Derechos de las personas interesadas: Acceder, rectificar y suprimir los datos, solicitar la portabilidad de los mismos, oponerse altratamiento y solicitar la limitación de éste, Procedencia de los datos: El Propio interesado, Información Adicional: Puede consultarse la información adicional y detallada sobre protección de datos Aquí.

Lignende eiendommer

STEPHANIE NATALIA LEYTON ROJAS es beneficiaria de la subvención ECOVUL/2022/660/03 de la Subdirección General de Empleo, y concedida por el Servicio Valenciano de Empleo y Formación LABORA, destinada a fomentar, en el ámbito territorial de la Comunidad Valenciana, la contratación de las personas desempleadas pertenecientes a determinados colectivos vulnerables, habiendo recibido 26.600€ por la contratación de un trabajador.

Kontakt WhatsApp