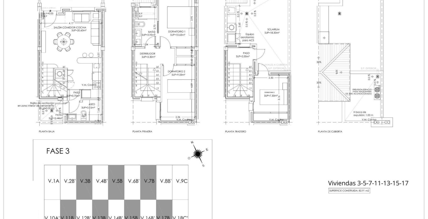
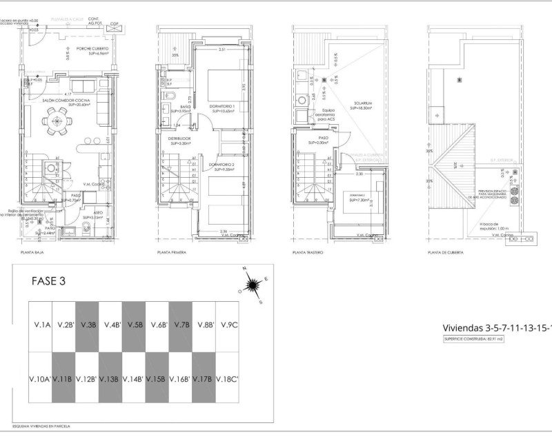
Moderne rekkehus nær golfbaner i Santa Rosalia-Murcia Nybygg i fredelige landsbyomgivelser Oppdag dette attraktive nye boligprosjektet med moderne rekkehus i den sjarmerende landsbyen Santa Rosalia i regionen Murcia. Omgitt av noen av de mest prestisjefylte golfbanene i området og bare en kort kjøretur fra strendene ved Mar Menor, tilbyr denne beliggenheten den perfekte kombinasjonen av ro, bekvemmelighet og friluftsliv. Santa Rosalia er en tradisjonell spansk landsby med en innbydende atmosfære, hvor beboerne kan nyte lokale butikker, et supermarked, barer og restauranter, inkludert den populære La Almazara. Den strategiske beliggenheten mellom Roda Golf, Mar Menor Golf og Los Alcazares gjør stedet svært attraktivt både for fastboende og som feriebolig. Stilfulle rekkehus med solterrasse og utendørs oppholdsområder Prosjektet består av 18 moderne rekkehus med 2 eller 3 soverom og 2 bad, designet med en moderne åpen planløsning. Hvert hjem har en lys stue og spisestue som er koblet til et fullt utstyrt kjøkken med hvitevarer, noe som skaper et funksjonelt og komfortabelt oppholdsrom. Alle boligene har et privat solarium på taket med et sommerkjøkken, ideelt for å nyte middelhavsklimaet, underholde gjester eller slappe av utendørs hele året. I tillegg har hver bolig en privat parkeringsplass og et oppbevaringsrom i en felles garasje. Kvalitetsfinish og moderne funksjoner Disse boligene er bygget med materialer av høy kvalitet og designet for å tilby komfort og energieffektivitet. Funksjonene inkluderer et aerotermisk system for varmt vann, forhåndsinstallasjon for kanalisert klimaanlegg og fullt utstyrte bad med møbler, speil og dusjvegger. Anlegget har også et felles svømmebasseng, som gir et perfekt sted å slappe av og nyte solfylte dager i fredelige omgivelser. Førsteklasses beliggenhet nær golf og sjø Santa Rosalia har en ideell beliggenhet bare 4,5 km fra strendene i Los Alcazares, kjent for sitt rolige vann og den lange promenaden langs Mar Menor. Området rundt er et paradis for golfelskere, med flere toppbaner bare noen minutter unna. Den nærliggende byen Los Alcazares tilbyr et bredt utvalg av tjenester, restauranter, butikker og fritidsaktiviteter, noe som gjør hverdagen enkel og hyggelig. Avstander til viktige severdigheter Strendene i Los Alcazares 4,5 km Roda Golf 3 km Mar Menor Golf 4 km Cartagena 25 km Murcia internasjonale lufthavn 30 km Ditt ideelle hjem på Costa Calida Dette prosjektet gir en utmerket mulighet til å eie et moderne rekkehus i et godt tilknyttet og fredelig område nær golfbaner og havet. Kontakt oss i dag for å få mer informasjon eller avtale en visning, og sikre deg ditt nye hjem i Santa Rosalia.
Denne informasjonen gitt her er underlagt feil og inngår ikke i noen kontrakt. Tilbudet kan endres eller trekkes tilbake uten varsel. Prisene inkluderer ikke andre kostnader
STEPHANIE NATALIA LEYTON ROJAS es beneficiaria de la subvención ECOVUL/2022/660/03 de la Subdirección General de Empleo, y concedida por el Servicio Valenciano de Empleo y Formación LABORA, destinada a fomentar, en el ámbito territorial de la Comunidad Valenciana, la contratación de las personas desempleadas pertenecientes a determinados colectivos vulnerables, habiendo recibido 26.600€ por la contratación de un trabajador.