Leyton real estate
Properties

Villa · New Build

Los Montesinos · La Herada
485.000€
Notify me of price drop
Contact
Request info

Villa · New Build

Los Montesinos · La Herada

Features

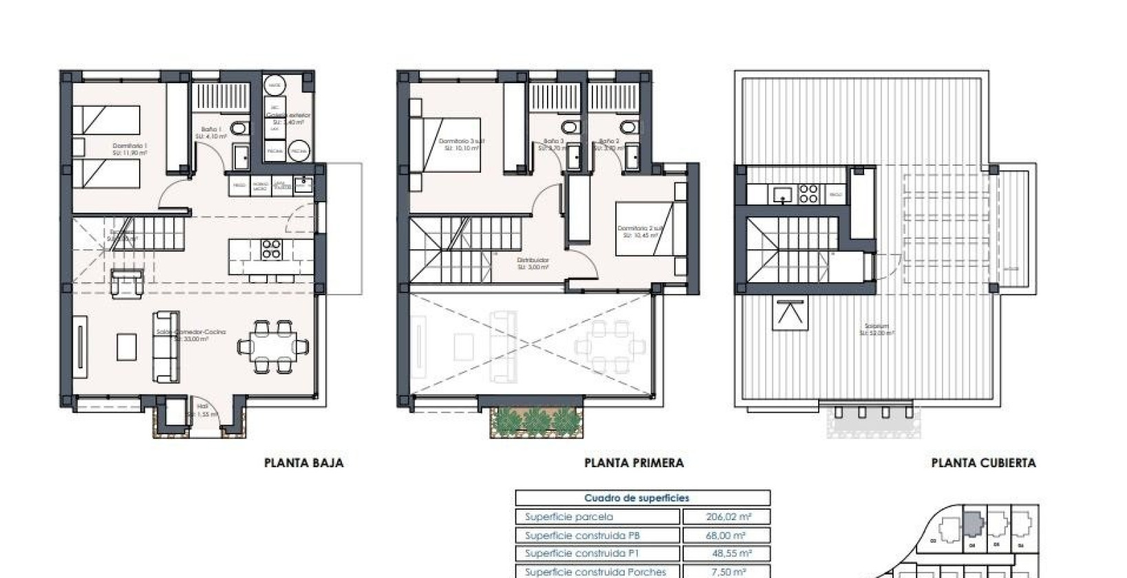
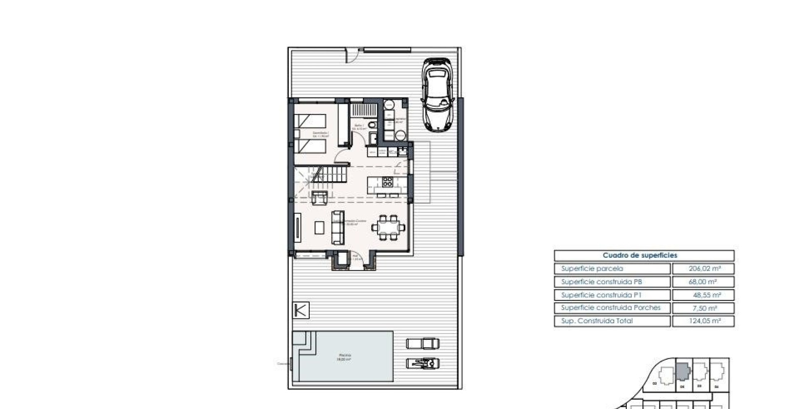
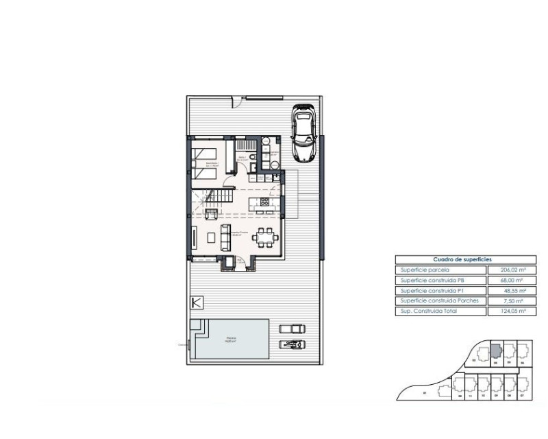
Bedrooms: 3
Bathrooms: 3
Built: 116m2
Plot: 206m2
Pool: Yes
Solarium: Yes
Private Pool
Gated
Number of Parking Spaces: 1
Near Golf / Golf Resort Property
Near Schools
Double Bedrooms: 3
Near Commercial Center
Location: Coastal, Rural, Urbanisation
Useable Build Space: 100 Msq.
Beach: 7000 Meters
Terrace: 52 Msq.
Parking - Space
Key Ready
Garden
Furnished
Near bus route
Energy Rating
Energy RatingB

Description

NEW-BUILD VILLA DEVELOPMENT IN LOS MONTESINOS Newly built villas with 3 bedrooms and 3 bathrooms, featuring an open-plan kitchen and living-dining area. All villas feature a rooftop terrace, private swimming pool, private garden and parking within the plot. Some units have basements where additional bedrooms and bathrooms can be fitted. All are built using high-quality materials and advanced technology for the comfort and convenience of our clients. The traditional village of Los Montesinos is strategically located a 10-minute drive from the beaches and leisure facilities of Torrevieja (with all the amenities of a major town: theatre, 2 hospitals, international schools, etc.), several golf courses and with easy access to the A7 motorway, allowing you to reach Alicante Airport in 20 minutes. The development features supermarkets and bars for everyday needs, whilst offering a peaceful, rural setting. The climate in this area guarantees 300 days of sunshine a year with an average temperature of 20°C, which, combined with the rich local cuisine and the cultural and sporting activities available in the surrounding area, makes this an ideal place to establish a second home for holidays or a peaceful place to live permanently.

Location

Economy

This info given here is subject to errors and do not form part of any contract. The offer can be changed or withdrawn without notice. Prices do not include purchase costs.

Calculate mortgages

Currency exchange

  • Pounds: 422.193 GBP
  • Russian ruble: 422.193 RUB
  • Swiss franc: 443.484 CHF
  • Chinese yuan: 3.840.909 CNY
  • Dollar: 563.958 USD
  • Swedish crown: 5.326.270 SEK
  • The Norwegian crown: 5.259.825 NOK

Ask for information

Responsable del tratamiento: , Finalidad del tratamiento: Gestión y control de los servicios ofrecidos a través de la página Web de Servicios inmobiliarios, Envío de información a traves de newsletter y otros, Legitimación: Por consentimiento, Destinatarios: No se cederan los datos, salvo para elaborar contabilidad, Derechos de las personas interesadas: Acceder, rectificar y suprimir los datos, solicitar la portabilidad de los mismos, oponerse altratamiento y solicitar la limitación de éste, Procedencia de los datos: El Propio interesado, Información Adicional: Puede consultarse la información adicional y detallada sobre protección de datos Aquí.

STEPHANIE NATALIA LEYTON ROJAS es beneficiaria de la subvención ECOVUL/2022/660/03 de la Subdirección General de Empleo, y concedida por el Servicio Valenciano de Empleo y Formación LABORA, destinada a fomentar, en el ámbito territorial de la Comunidad Valenciana, la contratación de las personas desempleadas pertenecientes a determinados colectivos vulnerables, habiendo recibido 26.600€ por la contratación de un trabajador.

Contact WhatsApp