Leyton real estate
Properties

Villa · New Build

La Romana · Batistes
378.000€
Notify me of price drop
Contact
Request info

Villa · New Build

La Romana · Batistes

Features

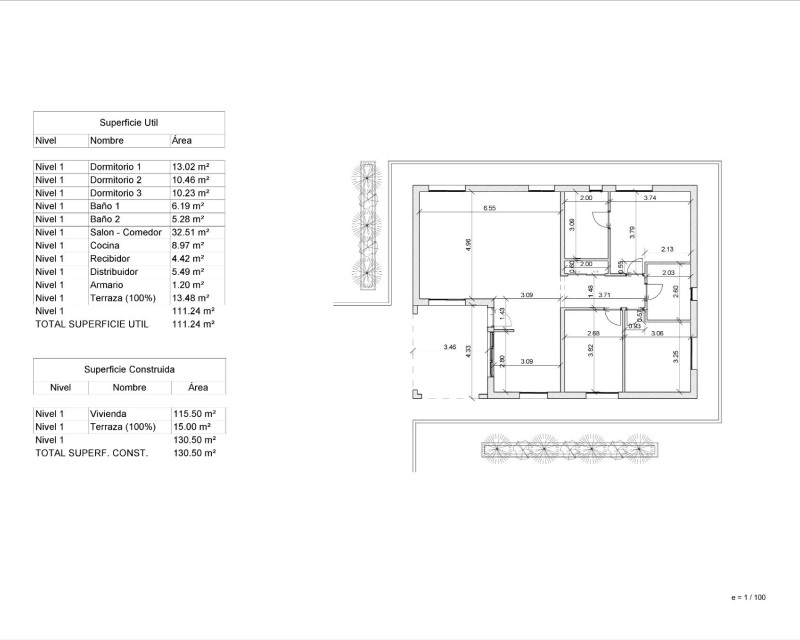
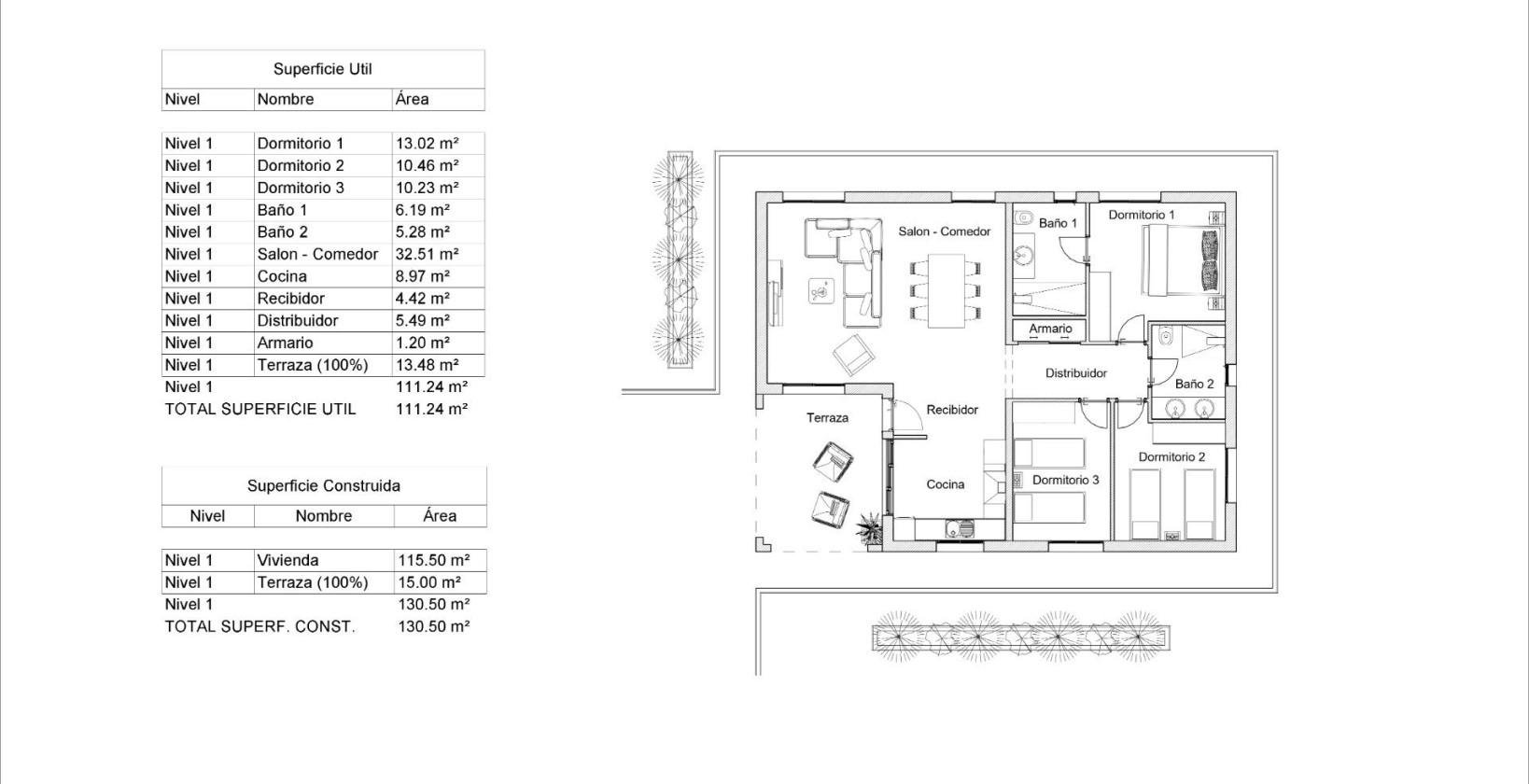
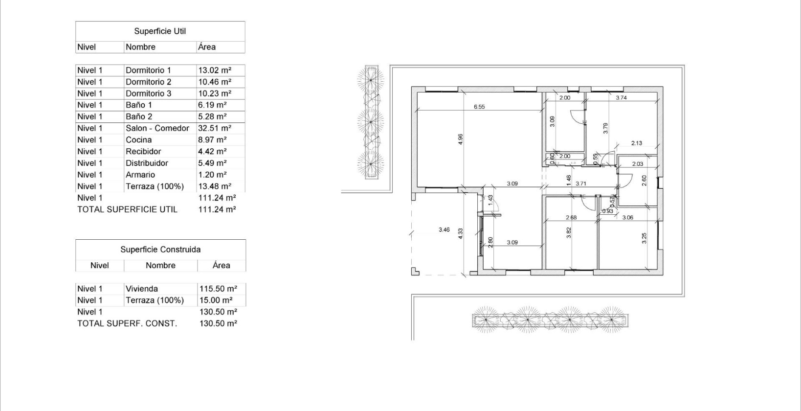
Bedrooms: 3
Bathrooms: 2
Built: 130m2
Plot: 10.227m2
Pool: Yes
Garden
Private Pool
Gated
Number of Parking Spaces: 1
Near Schools
Air Conditioning: Pre-Installed
Double Bedrooms: 3
Terrace: 15 Msq.
Useable Build Space: 110 Msq.
Location: Rural, Mountain
Parking - Space
Beach: 40000 Meters
Energy Rating
Energy RatingB

Description

Newly built villas located in La Romana. Newly built villas with several models to choose from, with 2 or 3 bedrooms, one or two floors, and built with slabs or a frame structure. The exact price will be calculated depending on the model and plot chosen. All villas are built on rustic plots of over 10,000 m2, of which 2,500 m2 will be fenced. The villas have an open-plan kitchen with living room, fitted wardrobes, private swimming pool, porch and outdoor parking space. There are several plots to choose from. The price has been calculated based on a plot priced at €73,000 (if another plot is chosen, the difference will be paid according to the price of the plot). Self-build project, delivery in approximately 12 months from the granting of the licence. If you are looking for a peaceful setting, close to typical Spanish villages away from mass tourism, surrounded by mountains, with a very large plot and about 30 minutes from the sea, this is your home. La Romana is a typical Spanish village with all the amenities you need for everyday life, surrounded by mountains and with several natural areas nearby where you can go hiking or mountain biking. Located 30 minutes from Alicante airport.

Location

Economy

This info given here is subject to errors and do not form part of any contract. The offer can be changed or withdrawn without notice. Prices do not include purchase costs.

Calculate mortgages

Currency exchange

  • Pounds: 329.049 GBP
  • Russian ruble: 329.049 RUB
  • Swiss franc: 345.643 CHF
  • Chinese yuan: 2.993.533 CNY
  • Dollar: 439.538 USD
  • Swedish crown: 4.151.196 SEK
  • The Norwegian crown: 4.099.410 NOK

Ask for information

Responsable del tratamiento: , Finalidad del tratamiento: Gestión y control de los servicios ofrecidos a través de la página Web de Servicios inmobiliarios, Envío de información a traves de newsletter y otros, Legitimación: Por consentimiento, Destinatarios: No se cederan los datos, salvo para elaborar contabilidad, Derechos de las personas interesadas: Acceder, rectificar y suprimir los datos, solicitar la portabilidad de los mismos, oponerse altratamiento y solicitar la limitación de éste, Procedencia de los datos: El Propio interesado, Información Adicional: Puede consultarse la información adicional y detallada sobre protección de datos Aquí.

STEPHANIE NATALIA LEYTON ROJAS es beneficiaria de la subvención ECOVUL/2022/660/03 de la Subdirección General de Empleo, y concedida por el Servicio Valenciano de Empleo y Formación LABORA, destinada a fomentar, en el ámbito territorial de la Comunidad Valenciana, la contratación de las personas desempleadas pertenecientes a determinados colectivos vulnerables, habiendo recibido 26.600€ por la contratación de un trabajador.

Contact WhatsApp