Leyton real estate
Properties

Villa · New Build

Jávea Xàbia · La Cala
1.450.000€
Notify me of price drop
Contact
Request info

Villa · New Build

Jávea Xàbia · La Cala

Features

Bedrooms: 3
Bathrooms: 2
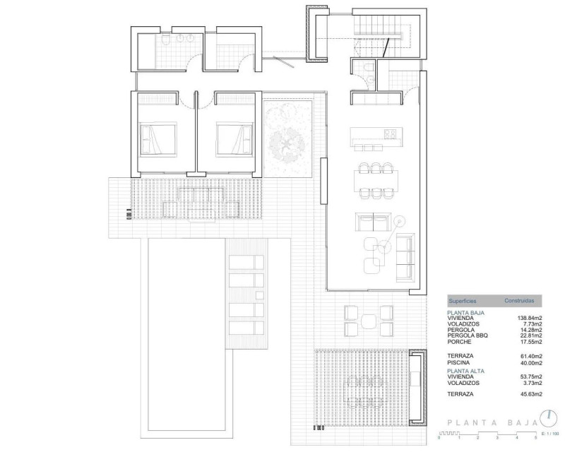
Built: 210m2
Plot: 1.000m2
Pool: Yes
Garden
Solarium: Yes
Private Pool
Gated
Number of Parking Spaces: 1
Near Schools
Air Conditioning: Pre-Installed
Double Bedrooms: 3
Near Commercial Center
Location: Coastal
Beach: 800 Meters
Parking - Space
Useable Build Space: 160 Msq.
Terrace: 105 Msq.
Toilet: 1
Energy Rating
Energy RatingB

Description

Modern New Build Villa Near the Sea in Javea Exclusive Mediterranean Living in Javea Discover this stunning contemporary villa located in one of the most sought after and peaceful areas of Javea, just 800 meters from the sea. Nestled between pine trees and close to the famous Cala de la Barraca and Cala del Portixol, this residence offers a privileged lifestyle surrounded by nature and coastal beauty. Javea, situated on the Costa Blanca between Alicante and Valencia, is known for its crystal clear waters, charming old town and year round mild climate, making it one of the most desired destinations in the Mediterranean. Elegant Design and Bright Open Spaces Designed for comfort and style, this villa features a modern architecture with soft lines, large windows and fluid indoor outdoor integration. Natural light bathes every corner, creating a warm and inviting ambiance ideal for both living and entertaining. The villa is distributed across two floors and includes Open plan living and dining area with seamless access to terraces and pool Fully furnished open concept kitchen 3 bedrooms and 2 bathrooms plus 1 guest toilet Laundry and pantry room Private garden, terraces and pool area with summer kitchen Private Master Suite and Outdoor Lifestyle The ground floor includes two bedrooms, a bathroom and spacious social areas. On the upper floor, the master bedroom offers a private sanctuary with en suite bathroom, a generous walk in wardrobe and a 45 m2 terrace, perfect for enjoying sunrise views and Mediterranean breezes. The outdoor space has been designed for relaxation, featuring a private pool, sun terraces and lush surroundings that ensure tranquility and privacy. Prime Location in Costa Blanca North Javea offers an exceptional lifestyle with beautiful beaches, hiking routes, marinas, golf courses and gourmet restaurants. The town is 92 km from Alicante and 105 km from Valencia. Key distances Beach and Cala del Portixol: 0.8 km Javea Port and Marina: 8 km Javea Golf Club: 10 km Alicante Airport: 100 km Valencia Airport: 125 km Your Mediterranean Home Awaits Whether you are seeking a permanent residence, a luxury holiday retreat or a premium investment, this villa delivers privacy, comfort and an exceptional coastal setting. Contact us today for more information or to arrange a viewing of this exclusive modern home in Javea.

Location

Economy

This info given here is subject to errors and do not form part of any contract. The offer can be changed or withdrawn without notice. Prices do not include purchase costs.

Calculate mortgages

Currency exchange

  • Pounds: 1.258.644 GBP
  • Russian ruble: 1.258.644 RUB
  • Swiss franc: 1.333.855 CHF
  • Chinese yuan: 11.609.715 CNY
  • Dollar: 1.698.240 USD
  • Swedish crown: 15.689.000 SEK
  • The Norwegian crown: 15.881.125 NOK

Ask for information

Responsable del tratamiento: , Finalidad del tratamiento: Gestión y control de los servicios ofrecidos a través de la página Web de Servicios inmobiliarios, Envío de información a traves de newsletter y otros, Legitimación: Por consentimiento, Destinatarios: No se cederan los datos, salvo para elaborar contabilidad, Derechos de las personas interesadas: Acceder, rectificar y suprimir los datos, solicitar la portabilidad de los mismos, oponerse altratamiento y solicitar la limitación de éste, Procedencia de los datos: El Propio interesado, Información Adicional: Puede consultarse la información adicional y detallada sobre protección de datos Aquí.

Similar Properties

STEPHANIE NATALIA LEYTON ROJAS es beneficiaria de la subvención ECOVUL/2022/660/03 de la Subdirección General de Empleo, y concedida por el Servicio Valenciano de Empleo y Formación LABORA, destinada a fomentar, en el ámbito territorial de la Comunidad Valenciana, la contratación de las personas desempleadas pertenecientes a determinados colectivos vulnerables, habiendo recibido 26.600€ por la contratación de un trabajador.

Contact WhatsApp