Leyton real estate
Properties

Apartment / flat · New Build

Cox · San Fernando
235.000€
Notify me of price drop
Contact
Request info

Apartment / flat · New Build

Cox · San Fernando

Features

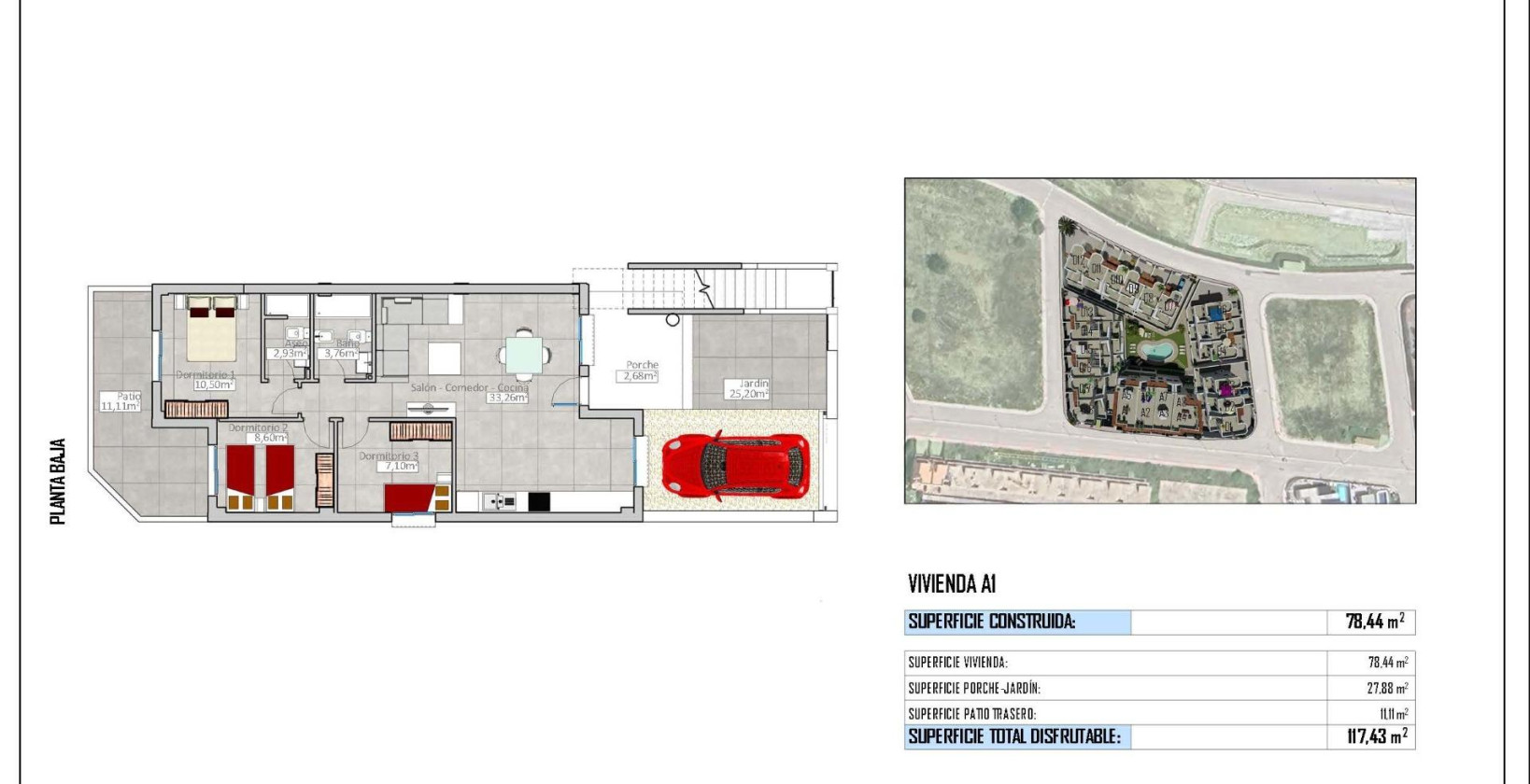
Bedrooms: 3
Bathrooms: 2
Built: 78m2
Plot: 25m2
Pool: Yes
Useable Build Space: 70 Msq.
Terrace: 13 Msq.
Location: Rural, Urbanisation
Parking - Space
Beach: 25000 Meters
Garden
Near bus route
Gated
Number of Parking Spaces: 1
Near Schools
Air Conditioning: Pre-Installed
Double Bedrooms: 3
Near Commercial Center
Communal Pool
Energy Rating
Energy RatingB

Description

New Bungalows and Townhouses in Cox, Alicante Exclusive Residential Development of 26 Homes Discover this new residential community in Cox, a charming town in the Vega Baja region of Alicante. The project offers 26 modern homes, including bungalows and townhouses with 2 or 3 bedrooms, designed to deliver comfort, privacy and Mediterranean living at its finest. Cox is known for its peaceful environment, traditional gastronomy and beautiful natural surroundings, making it an ideal location for families, holidaymakers and investors alike. Property Options Tailored to Your Lifestyle Choose from a variety of home types adapted to different needs: Ground floor bungalows with private garden Top floor bungalows with terrace and private solarium Townhouses with garden, multiple terraces and private solarium All ground floor bungalows and townhouses include private parking inside the plot, ensuring convenience and security. Each home is designed with functional layouts, abundant natural light and a traditional aesthetic with modern interiors. Quality Features and Modern Comforts The homes are equipped with essential high quality features that enhance daily living. These include interior and exterior LED lighting, electric shutters, built in wardrobes, security entrance door and pre installation for solar panels. Kitchens come fully furnished with appliances, while bathrooms include furniture, mirror and shower screens. The solariums also feature outdoor summer kitchens, ideal for entertaining and enjoying the Mediterranean climate. Community Amenities for All Residents The residential complex offers attractive communal areas, including a swimming pool surrounded by sunbathing spaces and landscaped zones, perfect for relaxation and socializing. Prime Location With Excellent Connectivity Situated in a well connected area, this development offers fast access to major cities and essential services: Alicante International Airport: 40 km Orihuela: 8 km Elche: 20 km Murcia: 25 km Alicante City: 48 km La Finca Golf: 12 km Vistabella Golf: 14 km Cox provides easy access to the AP 7 and A 7 motorways, allowing smooth travel throughout the Costa Blanca. Nearby attractions include shopping areas, sports facilities, healthcare centers and beautiful sandy beaches such as Guardamar del Segura and Torrevieja. Your New Home in the Heart of the Costa Blanca Whether you seek a permanent residence, a holiday home or an investment property, these homes in Cox offer outstanding value and lifestyle. Contact us today to schedule a visit and secure your ideal home in this exceptional development.

Location

Economy

This info given here is subject to errors and do not form part of any contract. The offer can be changed or withdrawn without notice. Prices do not include purchase costs.

Calculate mortgages

Currency exchange

  • Pounds: 204.568 GBP
  • Russian ruble: 204.568 RUB
  • Swiss franc: 214.884 CHF
  • Chinese yuan: 1.861.059 CNY
  • Dollar: 273.258 USD
  • Swedish crown: 2.580.770 SEK
  • The Norwegian crown: 2.548.575 NOK

Ask for information

Responsable del tratamiento: , Finalidad del tratamiento: Gestión y control de los servicios ofrecidos a través de la página Web de Servicios inmobiliarios, Envío de información a traves de newsletter y otros, Legitimación: Por consentimiento, Destinatarios: No se cederan los datos, salvo para elaborar contabilidad, Derechos de las personas interesadas: Acceder, rectificar y suprimir los datos, solicitar la portabilidad de los mismos, oponerse altratamiento y solicitar la limitación de éste, Procedencia de los datos: El Propio interesado, Información Adicional: Puede consultarse la información adicional y detallada sobre protección de datos Aquí.

STEPHANIE NATALIA LEYTON ROJAS es beneficiaria de la subvención ECOVUL/2022/660/03 de la Subdirección General de Empleo, y concedida por el Servicio Valenciano de Empleo y Formación LABORA, destinada a fomentar, en el ámbito territorial de la Comunidad Valenciana, la contratación de las personas desempleadas pertenecientes a determinados colectivos vulnerables, habiendo recibido 26.600€ por la contratación de un trabajador.

Contact WhatsApp